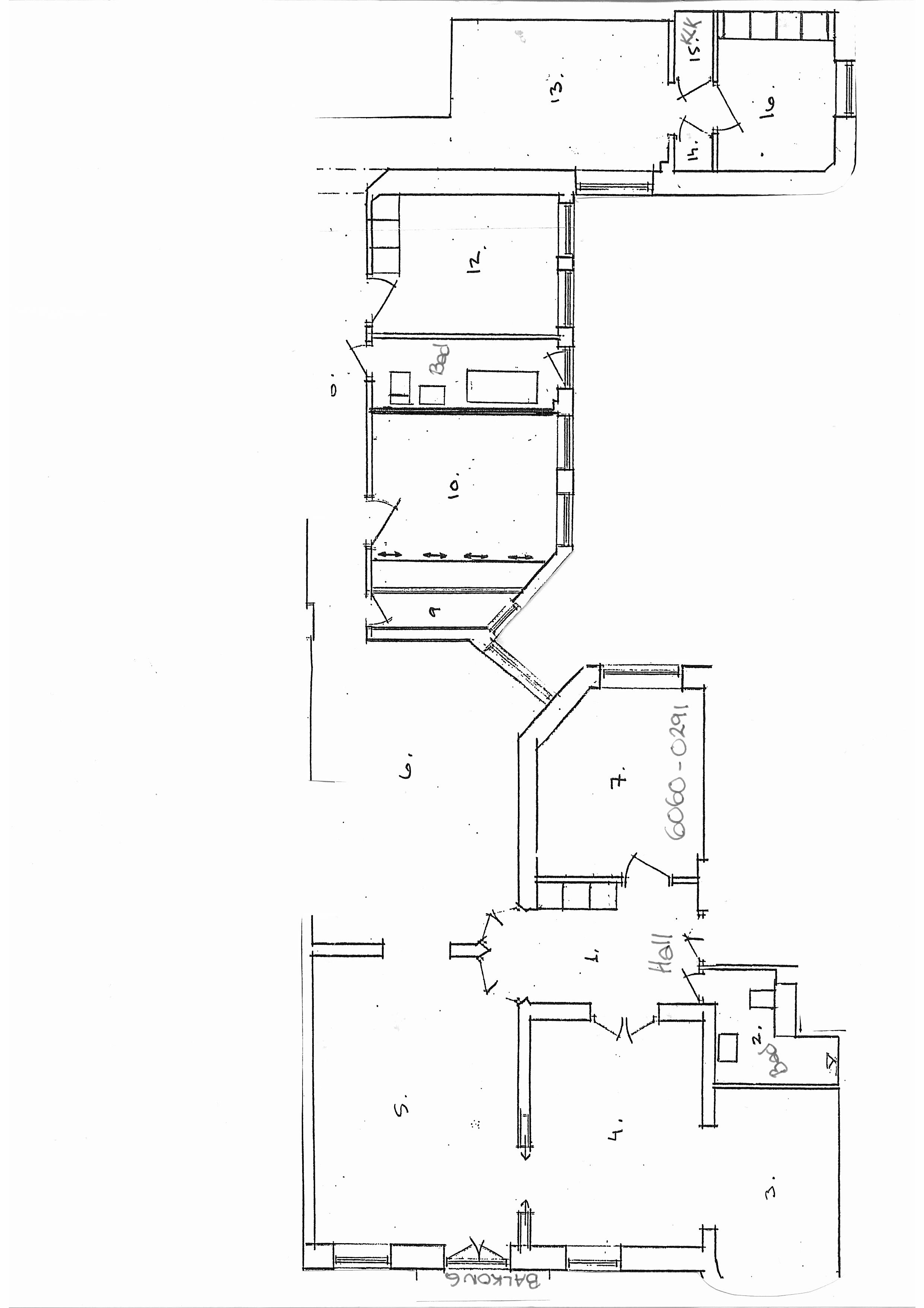
8 Rum och kök på Sundstorget 5, ledig bostad i HELSINGBORG

31 063 kr • 228 m2

8 Rum och kök

Ort: HELSINGBORG

Objektnr.: 6060-0291

Tillgänglig fr.o.m: 2026-02-01

Våningsplan: 4

Dagar publicerad: 48

Balkong

Hiss

Beskrivning

Vacker sekelskiftesvåning belägen på Sundstorget mitt i centrala Helsingborg. Stora vackra rum med stuckatur i taken. Två badrum med dusch. Tvättrum med tvättmaskin och torktumlare. Kök in mot gården, balkong mot Sundstorget. Fastighet med hiss.